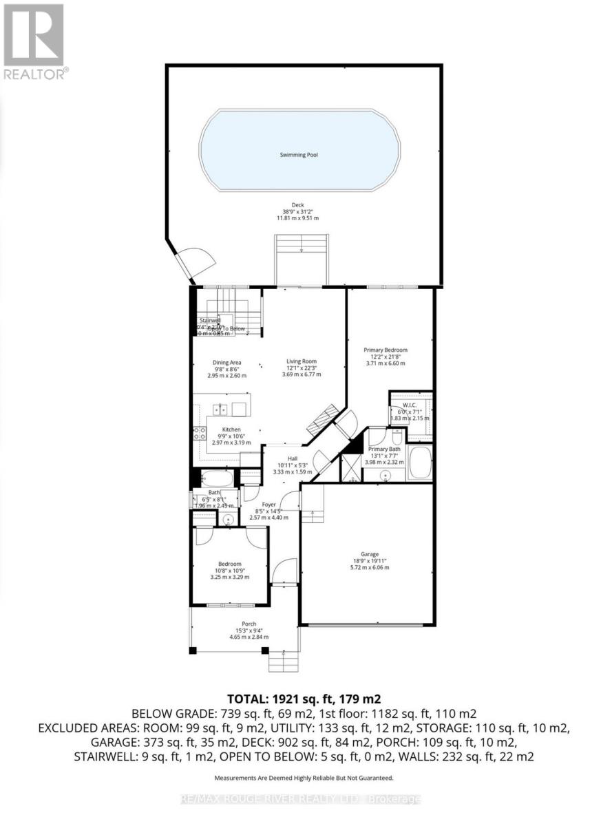
At the heart of the highly sought-after and centrally located West Park Village, this turnkey bungalow is defined by its standout backyard oasis-anchored by a beautifully integrated built-in pool that transforms everyday living into a private resort experience. With uninterrupted sightlines from the main living space to the deck and pool, the home is perfectly designed for effortless indoor-outdoor living and entertaining.The open-concept main level features a warm, inviting layout with a stylish, functional kitchen complete with a generous breakfast bar. Whether hosting summer gatherings or enjoying a quiet evening, the pool and outdoor space take center stage. A fireplace enhances the living room, while natural light pours in, further connecting the indoors to the vibrant outdoor setting.The spacious primary bedroom with ensuite offers comfort and convenience just off the main living area, alongside a second bedroom and full bathroom on the main floor.Downstairs, the lower level expands your living options with a cozy recreation room and bar, an additional bedroom and bathroom, and ample storage, perfect for guests or extended family.The backyard continues to impress with a charming Tiki Bar, creating the ultimate setting for poolside relaxation and entertaining. Thoughtful updates include air conditioning (2021), pool gas heater, filter, and stairs (2021), dishwasher (2022), new front steps (2024), freshly painted interior (2025), new carpet in the bedroom, stairs, and primary closet (2025), and a new garage door opener (2025).Blending contemporary finishes with a tranquil, resort-like atmosphere, this home offers a rare opportunity to enjoy a lifestyle centered around comfort, leisure, and an exceptional poolside experience. (id:37535)
| MLS® Number | X12702266 |
| Property Type | Single Family |
| Community Name | Cobourg |
| Amenities Near By | Beach, Golf Nearby, Hospital, Marina |
| Parking Space Total | 3 |
| Pool Type | Above Ground Pool, Inground Pool |
| Structure | Deck |
| Bathroom Total | 3 |
| Bedrooms Above Ground | 2 |
| Bedrooms Total | 2 |
| Age | 6 To 15 Years |
| Appliances | Water Heater, Dishwasher, Dryer, Garage Door Opener, Microwave, Stove, Washer, Window Coverings, Refrigerator |
| Architectural Style | Bungalow |
| Basement Development | Finished |
| Basement Type | N/a (finished) |
| Construction Style Attachment | Detached |
| Cooling Type | Central Air Conditioning |
| Exterior Finish | Vinyl Siding |
| Fireplace Present | Yes |
| Fireplace Total | 1 |
| Foundation Type | Poured Concrete |
| Heating Fuel | Natural Gas |
| Heating Type | Forced Air |
| Stories Total | 1 |
| Size Interior | 1100 - 1500 Sqft |
| Type | House |
| Utility Water | Municipal Water |
| Attached Garage | |
| Garage |
| Acreage | No |
| Fence Type | Fully Fenced |
| Land Amenities | Beach, Golf Nearby, Hospital, Marina |
| Sewer | Sanitary Sewer |
| Size Depth | 100 Ft ,2 In |
| Size Frontage | 41 Ft |
| Size Irregular | 41 X 100.2 Ft |
| Size Total Text | 41 X 100.2 Ft |
| Level | Type | Length | Width | Dimensions |
|---|---|---|---|---|
| Basement | Bathroom | 2.47 m | 1.76 m | 2.47 m x 1.76 m |
| Basement | Utility Room | 3.41 m | 3.75 m | 3.41 m x 3.75 m |
| Basement | Other | 3.07 m | 2.8 m | 3.07 m x 2.8 m |
| Basement | Other | 4.35 m | 4.89 m | 4.35 m x 4.89 m |
| Basement | Recreational, Games Room | 8.35 m | 5.74 m | 8.35 m x 5.74 m |
| Basement | Bedroom | 3.06 m | 3.83 m | 3.06 m x 3.83 m |
| Main Level | Foyer | 2.57 m | 4.4 m | 2.57 m x 4.4 m |
| Main Level | Bathroom | 1.96 m | 2.45 m | 1.96 m x 2.45 m |
| Main Level | Kitchen | 2.97 m | 3.19 m | 2.97 m x 3.19 m |
| Main Level | Dining Room | 2.95 m | 2.6 m | 2.95 m x 2.6 m |
| Main Level | Living Room | 3.69 m | 6.77 m | 3.69 m x 6.77 m |
| Main Level | Primary Bedroom | 3.71 m | 6.6 m | 3.71 m x 6.6 m |
| Main Level | Bathroom | 3.98 m | 2.32 m | 3.98 m x 2.32 m |
| Main Level | Bedroom | 3.25 m | 3.29 m | 3.25 m x 3.29 m |
https://www.realtor.ca/real-estate/29258376/657-prince-of-wales-drive-cobourg-cobourg
Contact us for more information
Marianne Wilson
Salesperson
(905) 372-2552
(416) 286-3348
www.remaxrougeriver.com/
Elizabeth Betancourt
Salesperson
(905) 372-2552
(416) 286-3348
www.remaxrougeriver.com/